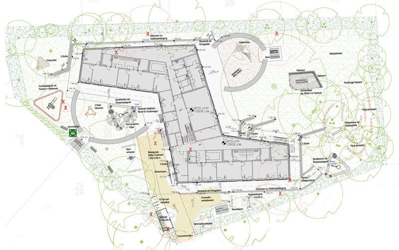
Das hängige Kita-Gelände ist von zahlreichen Bäumen und großen Rasenflächen geprägt. Die Freiflächengestaltung nimmt diese besondere Qualität auf und entwickelt sie adäquat weiter.
Eine Plattenfläche rahmt den Kita-Neubau und verbindet alle Spielbereiche barrierefrei miteinander. Gleichzeitig bietet sie Aufenthaltsfläche vor den Gruppenräumen und nimmt die Feuerwehrflächen auf. Die vorhandenen Spielgeräte, ein großes Spielhaus und Gerätehäuser wurden wiederverwendet und durch neue Spielgeräte ergänzt.
Projekt von Ipach und Dreisbusch GbR




